Retirement village property listed 17 October 2023
Summerset in the Bay, Napier, 79 Merlot Drive, Greenmeadows, Napier, Hawke's Bay
Recently available, this villa will be fully refurbished with all of our new specs, come have a look and we can show you a finished version too.
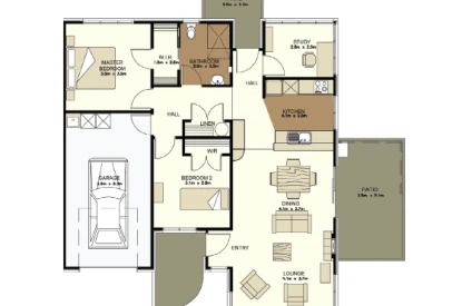
We currently have a villa newly available that is situated on the boundary fence of Merlot Drive creating a peaceful and private setting and excellent proximity to Park Island. It is open plan with a large patio and a separate patio space for the laundry line. This Villa is spacious with very generous storage and wardrobes; all in a floor plan of 122sqm. There are two double bedrooms and a single "study" room that can be used as an office or for your favourite hobby. The new specs for the full refurbishment include a new light, neutral colourway, stone benchtop, new flooring throughout, and new trellis for the patio.
Summerset in the Bay is a welcoming community of energetic residents who are all still very much young-at-heart. The village is situated in an idyllic spot at the northern end of Church Road, near the iconic Mission Estate Winery, and is built on former orchard land known as Citrus Grove.
The beautiful village centre is the heart of the village. It is home to a range of wonderful facilities such as the popular Divine Café, library, resident lounges, hair salo...
Read more
We currently have a villa newly available that is situated on the boundary fence of Merlot Drive creating a peaceful and private setting and excellent proximity to Park Island. It is open plan with...
Read more
We currently have a villa newly available that is situated on the boundary fence of Merlot Drive creating a peaceful and private setting and excellent proximity to Park Island. It is open plan with a large patio and a separate patio space for the laundry line. This Villa is spacious with very generous storage and wardrobes; all in a floor plan of 122sqm. There are two double bedrooms and a single "study" room that can be used as an office or for your favourite hobby. The new specs for the full refurbishment include a new light, neutral colourway, stone benchtop, new flooring throughout, and new trellis for the patio.
Summerset in the Bay is a welcoming community of energetic residents who are all still very much young-at-heart. The village is situated in an idyllic spot at the northern end of Church Road, near the iconic Mission Estate Winery, and is built on former orchard land known as Citrus Grove.
The beautiful village centre is the heart of the village. It is home to a range of wonderful facilities such as the popular Divine Café, library, resident lounges, hair salon, pool table, exercise room and spa pool, to name just a few.
One of the benefits of living at Summerset in the Bay is knowing that should your needs change, care is available in our on-site Care Centre. We offer a full range of aged-care services, from in-home support to rest home and hospital-level care (subject to availability).
To find out more about life at Summerset in the Bay, get in touch with our Sales Manager, Wendy Forman, on 021 243 5640 or email napier.sales@summerset.co.nz today!
For more information online, please visit our website summerset.co.nz/napier
*Homes sold under licence to occupy, subject to availability. Summerset does not offer rental accommodation. Care subject to eligibility
Read less